AI 模式
Beta
加入成為服務夥伴
香港 (繁體中文)
登入
扮靚及按摩
商戶預約
按摩店
髮型屋
美容院
美甲店
紋繡及美睫
產前產後護理
採耳店
生髮中心
物理治療中心
專家報價
美髮師
美容師
紋身師
家務及清潔
家務助理
深層清潔
入伙前清潔
裝修後清潔
家居清潔
辦公室清潔
冷氣清洗
冷氣機維修
除塵蟎
除甲醛
除蟲
上門寵物美容
家居裝修
裝修靈感
免費獲取裝修報價
裝修設計靈感
裝修公司案例
設計公司列表
工程公司列表
裝修及維修專家
家居翻新工程
家品維修
家居裝修後清潔
家品安裝
家居裝修
樓宇檢測
家居設計
系統安裝
家品更換
樓宇翻新
搬運及存倉
搬運
廢物處理
回收
速遞
迷你倉
運動及健身
健身
球類運動
武術運動
伸展運動
水上運動
滾軸及單車運動
其他運動
看護及照顧
長者照顧
陪診護送服務
長者社區券服務
護理中介公司
托兒服務
陪月服務
全部分類
家居服務
日常家務
家居裝修
搬運及存倉
消費品維修
個人成長及護理
扮靚及按摩
看護及照顧
補習及進修
治療及檢查
個人咨詢
健身及學習
運動及健身
興趣及音樂
商業服務
活動統籌
設計及營銷
公司服務
攝影及製作
商業裝修
其他生活服務
寵物天地
婚禮籌備
汽車服務
其他服務
今期推薦
鋁窗維修服務
免費裝修報價
裝修後清潔
搬屋公司搬運服務
除甲醛
辦公室清潔服務
滅蝨-$300
陪月服務
按摩店
美容院
髮型屋
大家減齡優惠
洗冷氣早鳥88折
按摩熱銷優惠
主頁
/
家居裝修
/
設計靈感
/
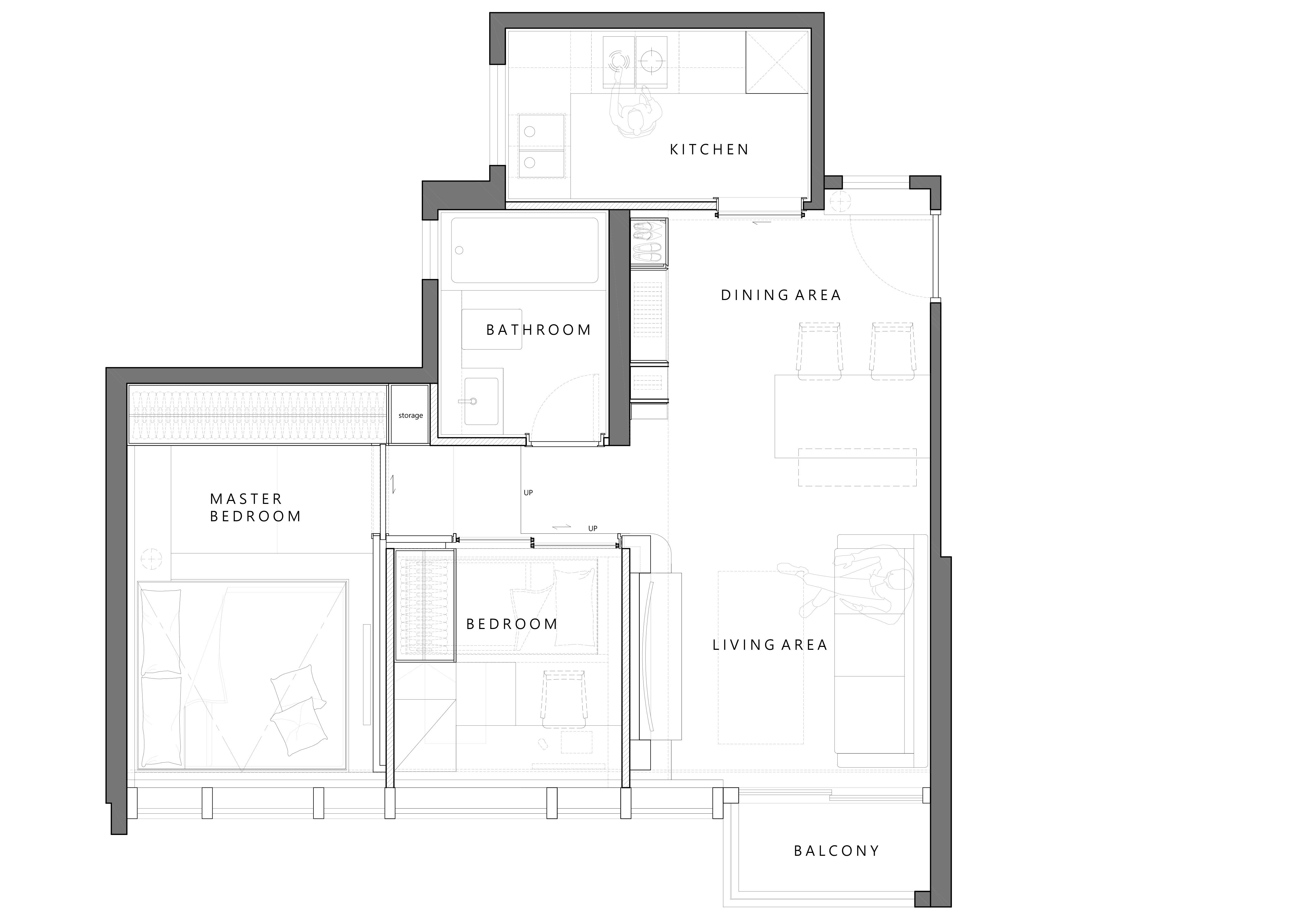
滿名山
主頁
/
裝修效果圖
/
滿名山
分享
10秒計出適合你的裝修預算!
Madmen Studio Limited
室內設計公司
144瀏覽次數
滿名山
現代風 / 私家樓 / 550呎 / 40萬 - 50萬
這個作品的其他效果圖
類近效果圖
換一換
聯絡我們